Опис об`єкта:
Терміново 2-х кімнатна квартира в ЖК Аврора вул. Героїв Крут (Терешкової)
7 поверх
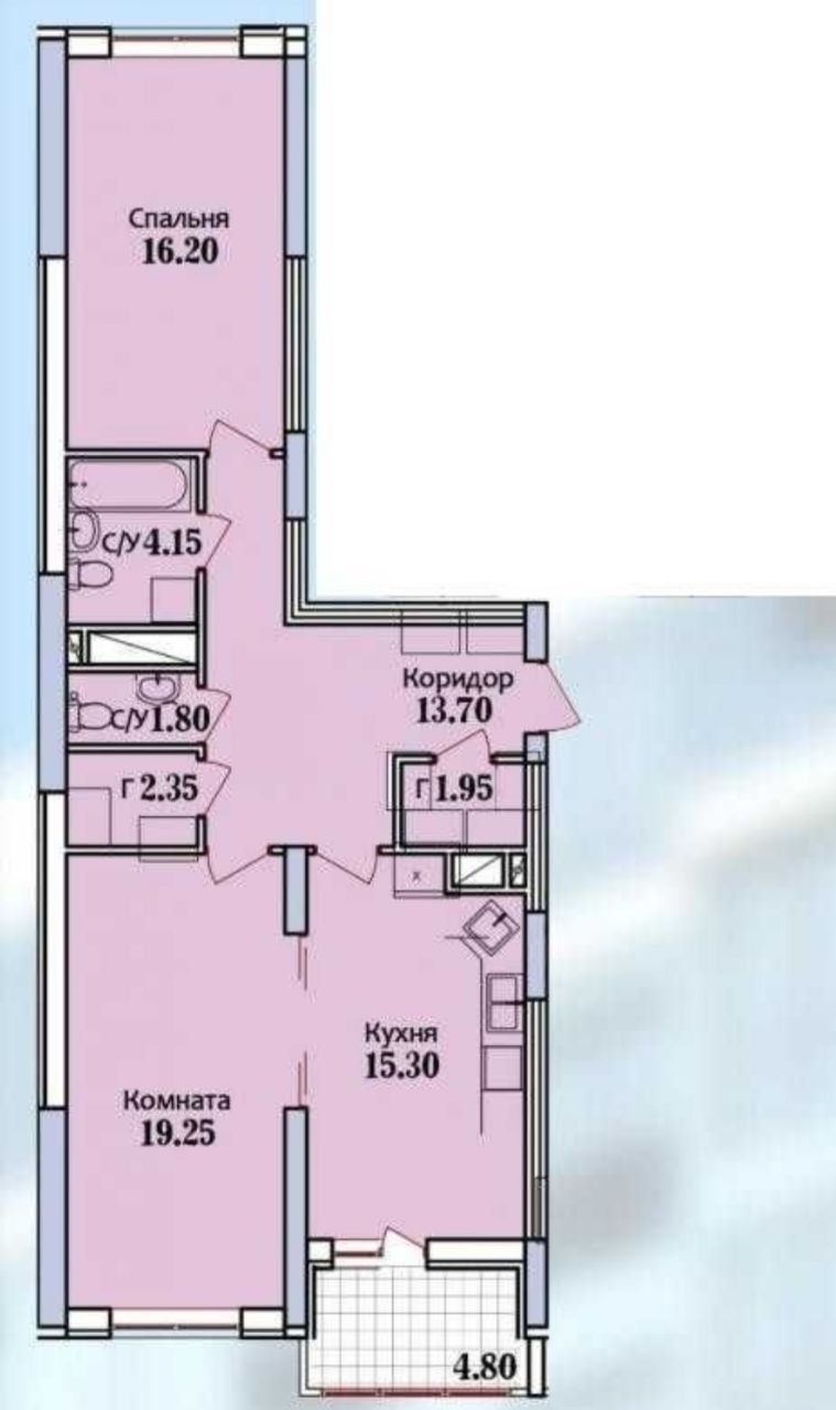
Загальна площа 78 кв.
Будинок бізнес-класу. Надійний забудовник
Простора квартира. Двостороннє планування. Балкон.
Металопластикові вікна, броньовані вхідні двері.
Повна автономія. Ліфти Євроформат. Консьєрж. Охорона. Паркінг.
Гарна інфраструктура.
Поруч школа, дитсадки, супермаркети, ринок Черемхи, фітнес клуб, парк Горького. Переуступка із можливістю збереження розстрочки до закінчення будівництва.
Телефонуйте! Розповімо про всі деталі продажу!